By Catarina Ferreira, AIA
Architextual’s work is clearly not traditional in style. Having grown up in Europe, I’ve always understood that old homes can be given a new life through careful, thoughtful interventions. Lack of stylistic compatibility between old and new is not something I’ve ever believed to be real. European architecture is full of examples that prove otherwise. When cities and buildings have been around for centuries, change is seen as inevitable and embraced.
Practicing architecture in the US, especially in a city like Washington DC, I have come across many projects that attempt a more literal ‘stylistic compatibility.’ Tastes can differ. Style aside, for me what has always mattered is the quality of the space/project I generate, and how much it improves its occupants’ quality of life.
A lot of our projects are interventions in existing buildings, often homes, many of which are around 100 years old or older. In these projects, we focus first and foremost on solving functional problems. Let’s face it, the way people lived 100 years ago is not the way we live today. As the container of our lives, architecture, especially homes, needs to reflect how we live today to be enjoyable.
Photo by ifocusfotos
On a project completed a couple of years ago, we had the opportunity to reinvent a classic center hall colonial home, likely the most common house type in the DC metro area. Located on a very desirable site, facing Rock Creek Park, the cookie cutter home did little to engage with its site conditions. Like many spec homes built nowadays, spec homes built 100 years ago were no better… they were repeated throughout entire neighborhoods with little recognition of site conditions, no matter how beautiful. As architects, we know that addressing/responding to site conditions is one of the ways a mere home can become architecture instead of mere construction.
The foyer pre-renovation.
The kitchen pre-renovation.
Early on, we identified several problems/missed opportunities:
Compartmentalized spaces limited access to natural light and views.
Kitchen was small and disconnected from other living spaces.
There was no mudroom, entry from driveway led directly into kitchen.
Sunroom space was oddly shaped and unusable, disconnected from other spaces, and blocked views of park from living room.
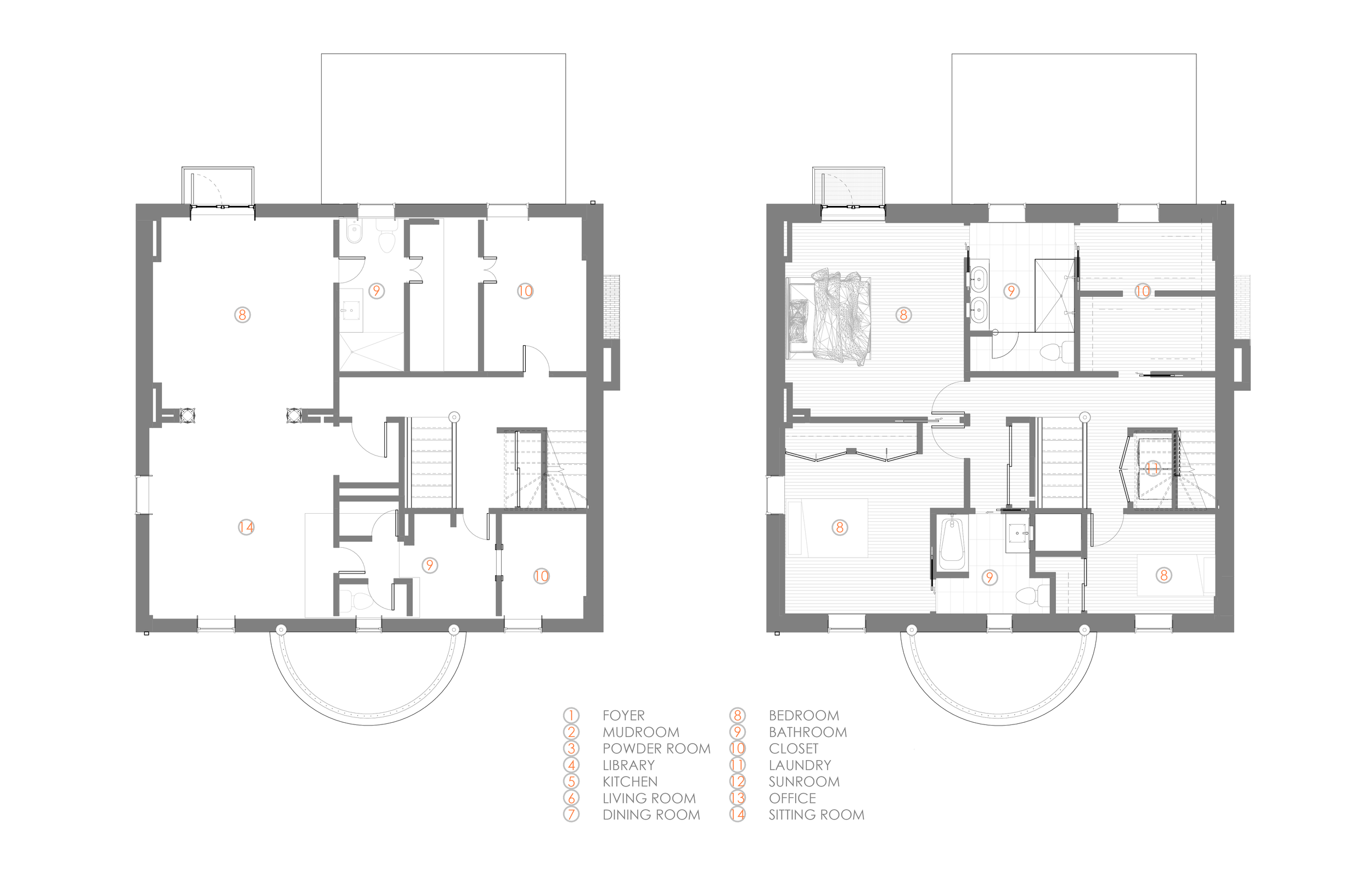
There was only one bedroom on entire second floor.
There was no laundry room on bedroom level.
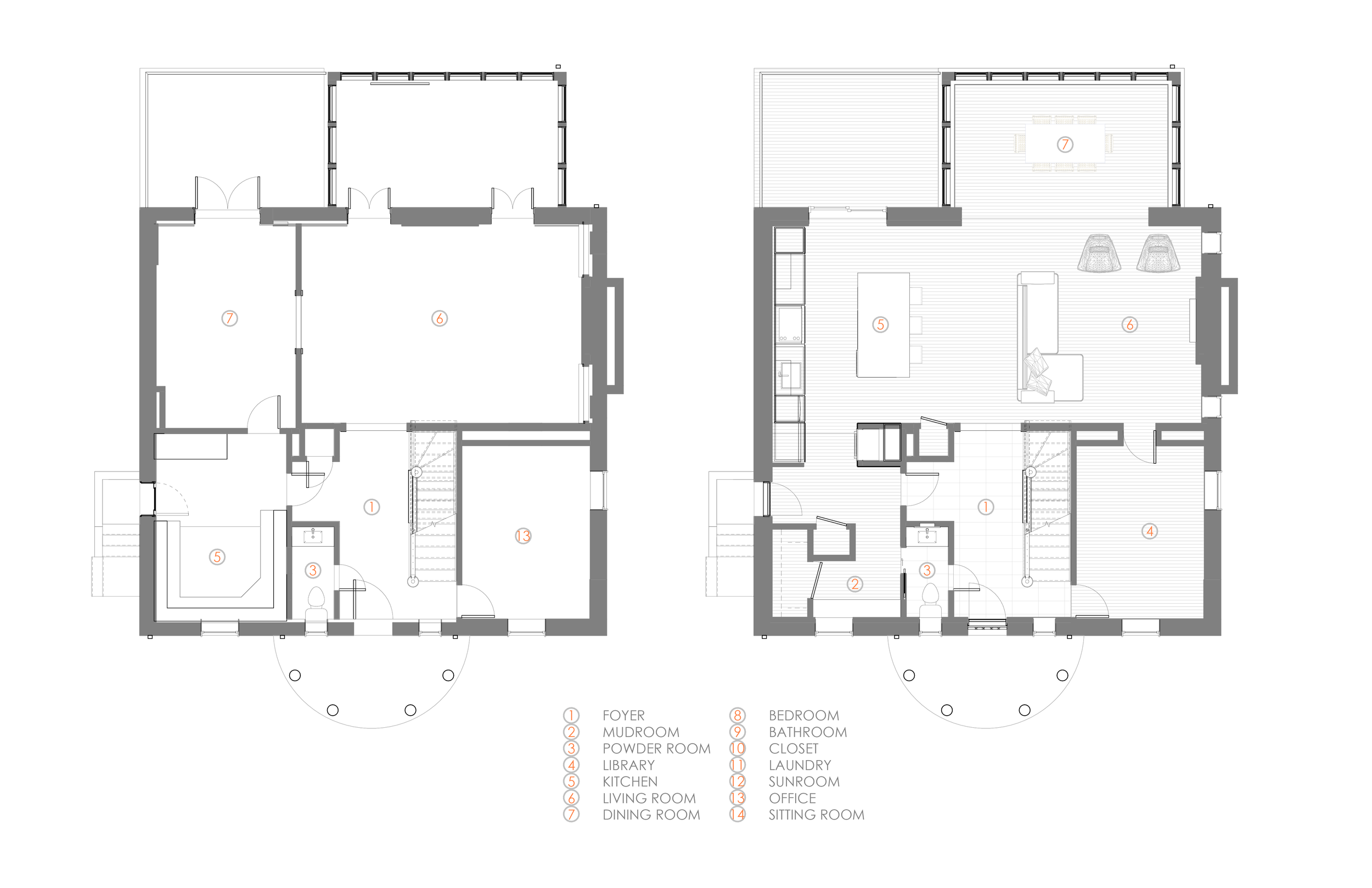
Before/After 1st Floor Plans
Photo by ifocusfotos
Photo by ifocusfotos
Photo by ifocusfotos
Our interventions needed to be both precise and effective. The pivotal decision in this case was moving the kitchen to the prior dining room area, something that was not immediately obvious would be the right move to our clients, as it required the dining room to be moved to the unappealing sunroom. In order to improve relationships between spaces several interior walls had to be removed, as well as a portion of the exterior wall separating the sunroom from the living room.
Photo by ifocusfotos
Photo by ifocusfotos
Photo by ifocusfotos
The rest of the layout fell into place easily. We created a mudroom where the kitchen had been previously located, added a second door to the powder room to make it accessible from both the mudroom and entry hall sides, enlarged/added windows in the new kitchen and living room areas, added a new pocket door connecting the living room and library spaces. Now we had a layout we could ‘roller skate around in,’ as is often my goal. There was improved functionality, flow, access to light and views. From the front door, we now had an unobstructed path to the windows facing the park on the opposite side of the house.
Photo by ifocusfotos
Photo by ifocusfotos
On the second floor, what had been an enormous, labyrinth-like primary suite became a primary suite with private bath and dressing room, two additional bedrooms, two bathrooms, and a laundry closet.
Before/After 2nd Floor Plans
On both levels, the house’s history is still legible. Some of the original elements were maintained and refurbished, altered slightly without erasing their character completely: the main stair and balustrade, the fireplace, some of the original decorative trims.
Photo by ifocusfotos
Photo by ifocusfotos
The end result has a slight Scandinavian/Japandi flair, with a composed yet informal, inviting quality throughout. The new dining room is everyone’s favorite space in the house.
